Бизнес-центр "Орликов"
Подробные поэтажные планы представлены в виде PDF-файлов.
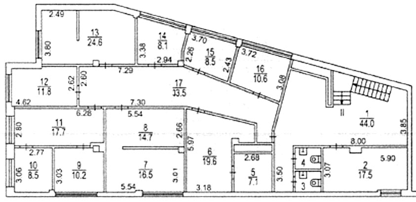
Полный набор поэтажных планов, включая подвалы, в одном PDF-файле.
Бизнес-центр "Орликов"
Подробные поэтажные планы представлены в виде PDF-файлов.
Полный набор поэтажных планов, включая подвалы, в одном PDF-файле.